Zur Navigation wechseln Zum Inhalt wechseln Zum Footer wechseln
Wohnen im Rebenpark - Ansicht
Courtagefrei

Provisionsfrei! Neues Wohnen - Rebenpark, ab Herbst 2025, Top Eigentumswohnungen in moderner Wohnanlage

Kaufpreis: 389.000,00 €

Kategorie

Objektart
Wohnung
Nutzungsart
Wohnen
Vermarktungsart
Kauf

Geografische Angaben

PLZ
66271
Ort
Kleinblittersdorf
Land
Deutschland
Etage
Penthouse

Preise

Kaufpreis
389.000,00 €
Außen-Provision
Provisionsfrei!

Flächen

Wohnfläche
ca. 98 m²
Anzahl Zimmer
3
Anzahl Schlafzimmer
2
Anzahl Badezimmer
1
Anzahl sep. WC
1
Anzahl Balkone
1

Ausstattung

Balkon
Befeuerung
Luft/Wasser Wärmepumpe
Fahrstuhl
Personenaufzug
Stellplätze
1 Freiplatz, 7.500 € (Kauf), 1 Tiefgaragenstellplatz, 20.000 € (Kauf)

Technische Angaben

ImmoNr
1848 WE2.2 H3

Ausstattung

Alle Wohnungen werden mit hochwertigem Innenraum-Design und exklusiven Materialien ausgestattet. Siehe Bau-und Ausstattungsbeschreibung.

Beschreibung

Neues Wohnen im Rebenpark - Fertigstellung ab Herbst 2025
Kaufpreiszahlung erst nach Fertigstellung
Energieeffizient KfW 55 - altersgerecht - barrierefrei - nachhaltig


Erdgeschoss-/, Obergeschosswohnung oder wunderschöne Penthouse-Wohnung, das hier angebotene Mehrfamilienhaus vor den Toren der Landeshauptstadt bietet für jede Lebenssituation Platz.
Ob für Singles, Paare, Familien oder altersgerechtes, barrierefreies Wohnen.

Finden Sie zwischen ca. 75 - und ca.105m² Ihre neuen 4-Wände!

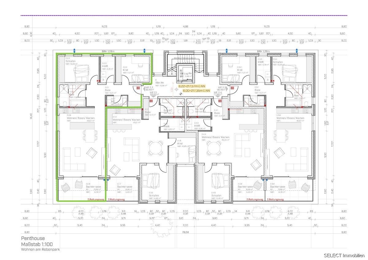
WE 2.2
Penthouse-Wohnung im Haus 3, Nummer 25b

Wohnfläche: ca. 98,46 m²
Diele, Hauswirtschaftsraum, Gäste WC, großzügiger offener Wohn-/Esszimmer-/Küchenbereich mit Ausgang auf die Dachterrasse, 2 Schlafzimmer, Bad

Ein Aufzug und eine Tiefgarage, sowie Außenstellplätze runden das Angebot ab.
Der Rebenpark wird aus - 3 Mehrfamilienhäuser mit je 12 Wohnungen - bestehen.

Außenstellplatz je 7.500 €
Tiefgaragenstellplatz je 20.000 €

Lage

Der "Rebenpark" befindet sich in Kleinblittersdorf in zentraler Lage, die ideale Mischung aus stadtnahem Leben und Natur, grenznah zu Frankreich. Die direkte Saarbahnanbindung macht den „Rebenpark“ zur attraktiven Wohnanlage.
In wenigen Minuten erreichen Sie hiermit staufrei die Saarbrückern City mit zahlreichen weiteren ÖPNV-Anbindungen. Beste Anbindung bietet auch die A6 Richtung Mannheim.
Die Entfernung zur Landeshauptstadt beträgt 8,5 km und ist in 9 Autominuten zu erreichen.

Kleinblittersdorf - vor den Toren Saarbrückens
In unmittelbarer Nachbarschaft zum "Rebenpark" befinden sich Super- und Drogeriemärkte (Rewe, Lidl, Aldi, Rossmann) Bäckereien, Banken (Sparkasse, Volksbank), Restaurants und Eiscafés sowie weitere Einzelhandelsgeschäfte.
Ebenso findet in Kleinblittersdorf ein Wochenmarkt statt.
Ein attraktives Freizeitangebot sorgt für hohe Lebensqualität: ein reges Vereinsleben, Sportstätten, Spielplätze, vielseitige Spazier-, Wander- und Radwege sowie die in wenigen Minuten zu erreichende Saarland-Therme.
ALLES DA, ALLES NAH!

Sonstige Angaben

Die Angaben wurden uns von Dritten zur Verfügung gestellt. Trotz sorgfältiger inhaltlicher Kontrolle kann daher für die Richtigkeit der Inhalte keine Haftung übernommen werden.
Bitte haben Sie Verständnis dafür, dass Ihre Anfrage nur bei Angabe ihrer Kontaktdaten mit Name, Anschrift, Telefon und Emailadresse korrekt bearbeitet werden kann. Vielen Dank für Ihr Verständnis.
Für Rückfragen stehen wir Ihnen selbstverständlich jederzeit gerne zur Verfügung.
Das Angebot ist freibleibend, die im Exposé gemachten Angaben sind uns von Dritten zur Verfügung gestellt worden, eine Garantie hierfür kann nicht übernommen werden. Eine Haftung hierfür schließen wir aus.

Energieausweis

A+
< 30
A
30 - 50
B
50 - 75
C
75 - 100
D
100 - 130
E
130 - 160
F
160 - 200
G
200 - 250
H
> 250
Baujahr lt. Energieausweis
2022
Energieausweis
Bedarfsausweis
Energieausweis gültig bis
09.01.2032
Energieeffizienzklasse
A
wesentlicher Energieträger
Luft/Wasser Wärmepumpe

Ihre Anfrage zu der Immobilie „Provisionsfrei! Neues Wohnen - Rebenpark, ab Herbst 2025, Top Eigentumswohnungen in moderner Wohnanlage“ (1848 WE2.2 H3)

Ihre Kontaktdaten

* Pflichtfelder

Ihr Ansprechpartner

Vertriebsabteilung Select Immobilien

Select Immobilien GmbH

Tel.:
06818390780
E-Mail:
info@select-24.de

Arndtstraße 21-23
66121 Saarbrücken

Weitere Immobilien

Stilvoll und generationsgerechtes Wohnen am Rebenpark - Eigentumswohnungen von 75m² bis 105m² - provisionsfrei

ImmoNr: 974 Wohnung Kauf 66271 Kleinblittersdorf Anzahl Zimmer: 96 Anzahl Schlafzimmer: 19 Grundstücksgröße: ca. 4.365 m² Wohnfläche: ca. 3.282 m²

Provisionsfrei! Neues Wohnen - Rebenpark, ab Herbst 2025,Top Eigentumswohnungen in moderner Wohnanlage

ImmoNr: 1829 WE0.4 H2 Wohnung Kauf 66271 Kleinblittersdorf Anzahl Zimmer: 2 Anzahl Schlafzimmer: 1 Grundstücksgröße: ca. 4.365 m² Wohnfläche: ca. 75 m²

Provisionsfrei! Neues Wohnen - Rebenpark, ab Herbst 2025, Top Eigentumswohnungen in moderner Wohnanlage

ImmoNr: 1830 WE0.4 H3 Wohnung Kauf 66271 Kleinblittersdorf Anzahl Zimmer: 2 Anzahl Schlafzimmer: 1 Grundstücksgröße: ca. 4.365 m² Wohnfläche: ca. 75 m²

Provisionsfrei! Neues Wohnen - Rebenpark, ab Herbst 2025, Top Eigentumswohnungen in moderner Wohnanlage

ImmoNr: 1831 WE1.1 H1 Wohnung Kauf 66271 Kleinblittersdorf Anzahl Zimmer: 3 Anzahl Schlafzimmer: 2 Grundstücksgröße: ca. 4.365 m² Wohnfläche: ca. 87 m²

Provisionsfrei! Neues Wohnen - Rebenpark, ab Herbst 2025, Top Eigentumswohnungen in moderner Wohnanlage

ImmoNr: 1832 WE1.1 H2 Wohnung Kauf 66271 Kleinblittersdorf Anzahl Zimmer: 3 Anzahl Schlafzimmer: 2 Grundstücksgröße: ca. 4.365 m² Wohnfläche: ca. 87 m²